Palm Beach Gardens-based Ram Realty has filed a pre-application for a residential development in Miami-Dade County.
The project would measure eight stories above grade and occupy a 7.08-acre site that was once home to a mobile home park and two other commercial ventures. Both are in the process of being demolished.

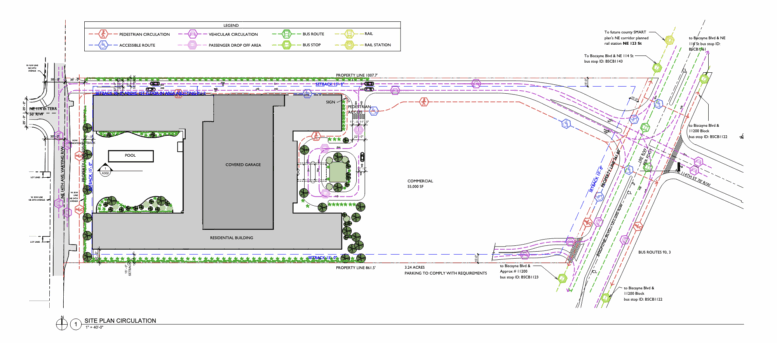
The project would add 417 apartments to the area, replacing a mobile home park. Image from Miami-Dade County
The mid-rise building is slated to feature just over 715,000 square feet of new construction, comprising 417 apartments. Floorplans would span studio to two-bedroom units, and they would measure about 580 to 1,200 square feet. Residents would have access to 630 parking spots in a multi-level parking garage, along with a host of communal amenities, such as a dog spa, co-working center, and gym. There would also be a swimming pool with cabanas.
Ram Realty purchased the development’s build site for $13.5 million in 2024. In the future, the firm intends to move forward with the development’s commercial aspect, which would be located on the east side of the property. Those plans call for 55,000 square feet of commercial space and 228 parking spots.
CBA Architects designed the eight-story development. The 417-unit development has been proposed for 11320 Biscayne Blvd, Miami, FL, 33181, in Miami-Dade County.
Subscribe to YIMBY’s daily e-mail
![]()
Follow YIMBYgram for real-time photo updates
Like YIMBY on Facebook
Follow YIMBY’s Twitter for the latest in YIMBYnews


Be the first to comment on "Ram Realty Proposes Residential Aspect of Larger Mixed-Use Venture for 11320 Biscayne Blvd, Miami, FL"