The Standard Residences, Midtown Miami Now Complete, Closings Commence
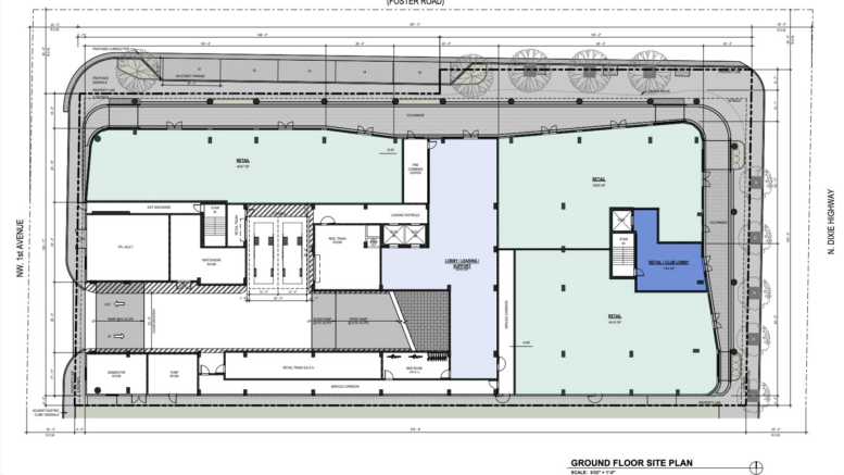
The Standard Residences, Midtown Miami, a 12-story, 228-unit condominium at 3100 NE 1st Avenue in Midtown Miami, is now complete. The building has received its temporary certificate of occupancy and commenced closings. Rosso Development, Hyatt, and Midtown Development are the project’s developers. Per a recent press release, the building is nearly sold out.
Read More




