An affiliate of 1112 Development hopes to move forward with a multi-family housing development in Pompano Beach.
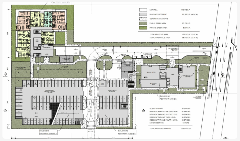
The Satori at Lighthouse Point would comprise three eight-story buildings, featuring 182 apartments, 27 of which would be “flex units.” Floorplans would range from studio to three-bedroom layouts, with residences measuring 814 to 1,811 square feet.
Communal amenities would include a pool area with a lounge, a fitness center, and a clubhouse, among other offerings. Residents will have access to 336 parking spots, 38 of which would be designated for guests.

The community’s proposed build site. Image from 1112 Development
Delray Beach-based Madsen Design is the architect. Floridian Development reports that the firm describes the project as having a contemporary design that seamlessly blends with the other, modern buildings in the area.
4211 N Fed purchased The Satori at Lighthouse Point’s build site for $5.89 million earlier this March. The site measures 2.72 acres across three parcels, spanning 118,451 square feet. It’s zoned as General Business (B-3) and currently hosts the Lighthouse Point Hotel, which would be demolished to accommodate the region’s growing demand for housing.
The City of Pompano Beach Development Review Committee intends to review the proposal for The Satori at Lighthouse Point this upcoming Wednesday. If approved, the venture would be located at 4211 North Federal Highway, Pompano Beach, Florida, 33064, in Broward County.
Subscribe to YIMBY’s daily e-mail
![]()
Follow YIMBYgram for real-time photo updates
Like YIMBY on Facebook
Follow YIMBY’s Twitter for the latest in YIMBYnews


Be the first to comment on "182-Unit ‘The Satori at Lighthouse Point’ Proposed for 4211 North Federal Highway, Pompano Beach, Florida"