Hallandale Beach-based Meyers Accesso has plans for a multi-family housing development under the Avery banner in Fort Lauderdale.
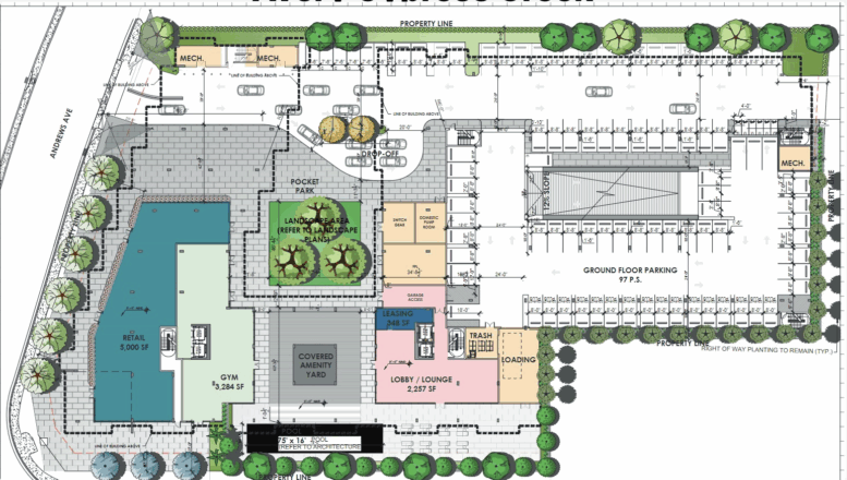
Avery Cypress Creek would comprise 200 residences, including luxury one-bedroom and two-bedroom apartments. The building would rise eight stories above grade and occupy a 2.2-acre lot that the developer purchased for $8 million. Collier helped arrange the sale between the developer and the site’s previous owner, Double Mountain Development LLC.

The building would measure 89 feet at its highest point. Image by Kobi Karp
Just some of the communal amenities include (but aren’t limited to) a 3,284-square-foot fitness center, a covered amenity yard, and a courtyard pocket park. There would also be 295 parking spots. In addition to the residential aspect, site plans suggest that there would be 5,000 square feet of retail.
Miami-based Kobi Karp is the architect. Meyers Accesso, the developer, is a joint venture between Meyers Group and Accesso. Meyers Group has many developments under the Avery banner both completed and in the works. In Florida, two developing projects include Avery at Port Charlotte in Fort Myers and Residences at Broken Sound in Boca Raton.
If brought to fruition, Avery Cypress Creek would be located at 6210-6282 North Andrews Avenue, Fort Lauderdale, Florida, 33309, in Broward County. True to the development’s name, the community would be part of Fort Lauderdale’s Cypress Creek neighborhood.
Subscribe to YIMBY’s daily e-mail
![]()
Follow YIMBYgram for real-time photo updates
Like YIMBY on Facebook
Follow YIMBY’s Twitter for the latest in YIMBYnews


Be the first to comment on "‘Avery Cypress Creek’ to Offer 200 Luxury Homes at 6282 North Andrews Avenue, Fort Lauderdale, Florida"