An affiliate of Abacus Group has resubmitted plans for a mid-rise apartment in Tampa’s Ybor Heights.
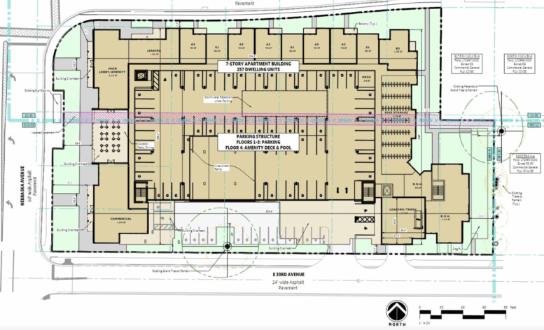
The revised venture, currently known as Ybor Heights Apartments, would measure seven stories above grade and comprise 257 residences – 27 of which would be designated as affordable housing. Developer Channelside Partners isn’t seeking incentives under the Live Local Act, but rather a Florida Statute that offers benefits for communities that are 10 percent affordable housing.

The community would replace a now-closed Walgreens. Image from Google Earth
Homes would range from studio to two-bedroom layout plans, and residents would have access to 285 parking spots: 259 for motor vehicles and the remaining 26 for bicycles. Additionally, there would be communal amenities on the fourth floor (one of which would be a swimming pool) and 2,649 square feet of commercial space.
Channelside Partners initially submitted plans for Ybor Heights Apartments in September 2024 before rescinding its application. Original plans called for a nine-story building with 296 units and 2,729 square feet of commercial space.
The developer purchased the build site for $2.4 million in 2023. The site previously hosted a Walgreens which will be demolished to make way for the new community. Baker Barrios Architects designed the venture.
Ybor Heights Apartments is slated for 3917 N Nebraska Ave, Tampa, Florida, 33603, in Hillsborough County.
Subscribe to YIMBY’s daily e-mail
Follow YIMBYgram for real-time photo updates
Like YIMBY on Facebook
Follow YIMBY’s Twitter for the latest in YIMBYnews


Be the first to comment on "Developer Resubmits Plans for ‘Ybor Heights Apartments’ at 3917 N Nebraska Ave, Tampa, Florida"