Texas-based Claremont Property Company has plans for a boutique condominium in Fort Lauderdale.
Our sources report that the building would measure eight stories above grade and comprise five luxury homes measuring 3,050 to 3,200 square feet each. They are currently priced from $3 million to $3.5 million; communal amenities would include a swimming pool and seven 38-foot boat slips. The slips would allow owners greater access to the Stranahan River.

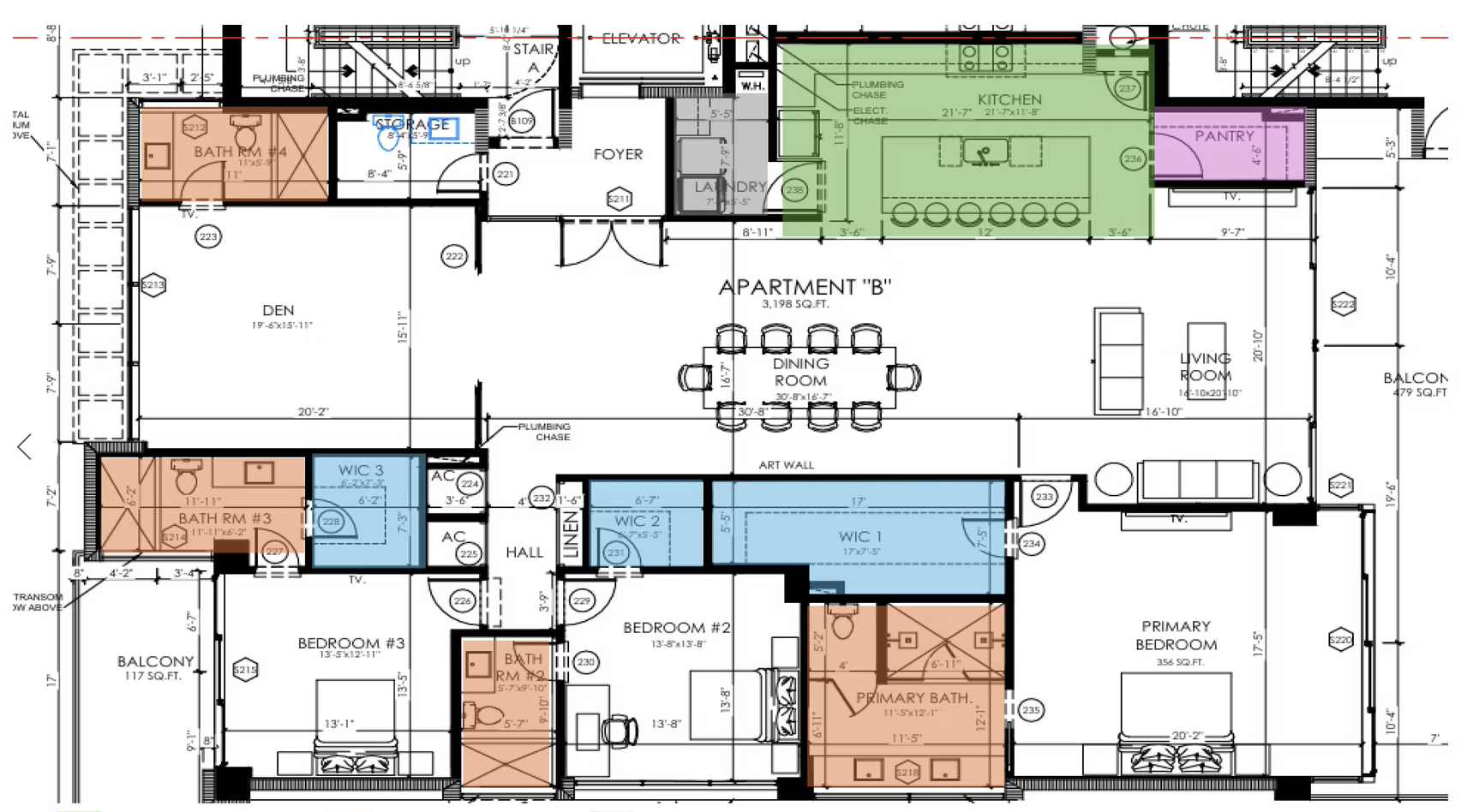
Renderings of one of the four-bedroom units. Image from Claremont Property Company
Claremont Property Company purchased the project’s 0.3-acre waterfront site for $7.5 million from its previous owner, an affiliate of Construction Development Associates (CDA). The latter firm acquired the site for $4.5 million in March 2024, a 66 percent increase in value over an eight-month period. Completion is slated 18 months from the start of groundbreaking, which is expected to start soon.
The five-condo development isn’t the only boutique project taking shape in South Florida. In October, Florida YIMBY reported on Colette Residences, a five-story condo planned for Miami’s South Brickell neighborhood. Upon completion, the project would feature just 38 two-bedroom and four-bedroom units.
The five-condo community is planned for 50 Isle of Venice Drive, Fort Lauderdale, Florida, 33301, in Broward County.
Subscribe to YIMBY’s daily e-mail
![]()
Follow YIMBYgram for real-time photo updates
Like YIMBY on Facebook
Follow YIMBY’s Twitter for the latest in YIMBYnews


Be the first to comment on "Luxury Boutique Condo Planned for 50 Isle of Venice Drive, Fort Lauderdale, Florida"