Florida YIMBY has an update regarding an affordable multi-family housing venture that’s been in development for more than two years.
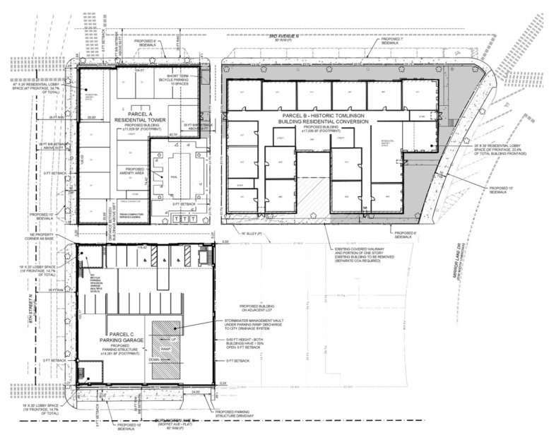
In 2023, initial plans called for 225 apartments in two buildings: the redeveloped Tomlinson Adult Learning Center (constructed in 1924) and a new 14-story tower. However, after working out some details, the project has been slightly downsized to include 202 units: 47 in the original Learning Center and the remaining 155 in a 13-story tower.

Plans call for the redevelopment of the Tomlinson Adult Learning Center (pictured). Image from Google Earth
Layout plans would range from studio to two-bedroom models, and residents would have access to various on-site amenities, including a swimming pool and 148-spot parking garage. Residency would be available to tenants earning up to 60 and 110 percent of the area median income (AMI). Pinellas County’s median family income was $92,000 as of 2024.
The community would be built in a single phase; construction is expected to start in summer 2026 and conclude two years later in 2028. Tomlinson Community Partners, a partnership between Dantes Partners and Goshen + Cornerstone, is the developer. The project will cost more than $15 million to complete.
The 202-unit community is slated for the 1.36-acre site at 296 Mirror Lake Drive, St. Petersburg, Florida, 33701, in Pinellas County.
Subscribe to YIMBY’s daily e-mail
![]()
Follow YIMBYgram for real-time photo updates
Like YIMBY on Facebook
Follow YIMBY’s Twitter for the latest in YIMBYnews


Be the first to comment on "Plans Updated for Redevelopment of 101-Year-Old Building at 296 Mirror Lake Drive, St. Petersburg, Florida"