An affiliate of Miami Lakes-based Florida Value Partners has filed plans that involve demolishing a 1990s-era office building and replacing it with a residential project in Kendall. The venture is following a larger trend of developers filing under the Live Local Act to gain various boosts and financial incentives.
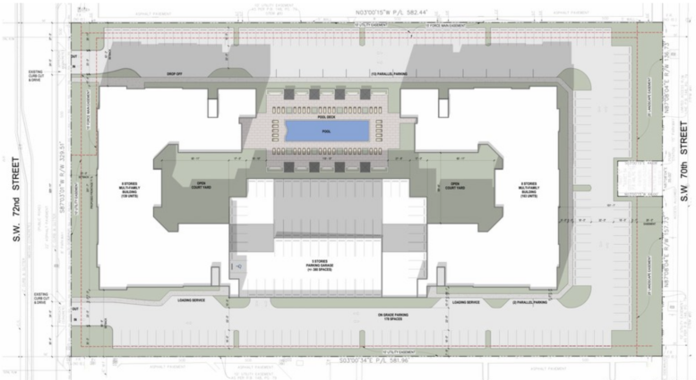
FVP Forum Owner LLC has proposed a two-tower venture with the buildings measuring eight stories above grade. Between them, they would feature 302 residences, at least 40 percent of which (about 120) would be workforce housing. Miami-Dade County defines workforce housing as housing available to households earning within 60 to 140 percent of the area median income (AMI).

The project would replace an office building constructed in the late 1990s. Image from Google Earth
Corwil Architects designed the project. The two buildings would be connected by a swimming pool deck and host various on-site amenities, including a fitness center and co-working space. Other features include ground-floor retail and a five-story parking garage. Specifically, there would be 308 covered parking spots and another 178 surface spots.
FVP Forum Owner LLC purchased the project’s 4.37-acre site for $10 million in 2025 as part of a larger acquisition deal. Coastland Residential is the general contractor.
The 302-unit venture is currently in its pre-application phase; here, developers meet with city officials to learn more about projects’ feasibility and possible legal hurdles. FVP Forum Owner LLC’s venture has been proposed for 9415 SW 72nd St, Miami, FL, 33173, in Miami-Dade County.
Subscribe to YIMBY’s daily e-mail
![]()
Follow YIMBYgram for real-time photo updates
Like YIMBY on Facebook
Follow YIMBY’s Twitter for the latest in YIMBYnews


The old building in the pic looks more like a cheap motel than an office building. Sounds like the new residential project will be nice replacement.