Construction has started on a multi-family residential development with some workforce housing in Lake Worth Beach.
Lake Worth Station is slated to measure five stories above grade, offering a total of 91 luxury units. Of those units, 39 will be designated as workforce housing, which Palm Beach County defines as housing reserved for tenants earning 60 to 140 percent of the area median income (AMI); county records report that as of 2024, the area median income was $104,000.

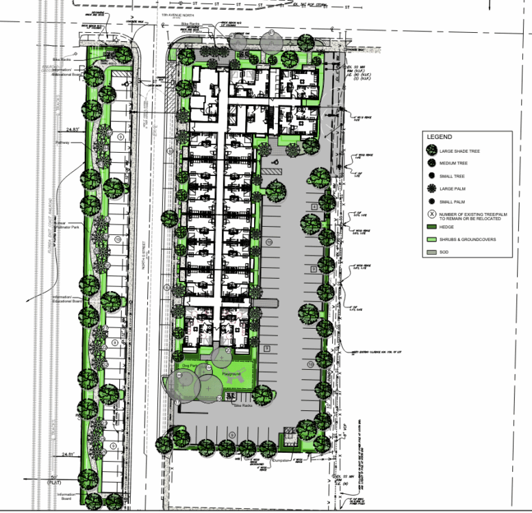
The venture will offer 91 apartments. Image from Martin Architectural Group
Homes will span studio to three-bedroom layout plans, measuring 507 to 1,230 square feet. Communal amenities feature a dog park, children’s playground, and bike racks. Bridge Holding LLC is the developer. The firm assembled the project’s 1.44-acre parcel for $1.2 million in 2021.
Initially, plans called for 81 apartments ranging from one-bedroom to two-bedroom units. Plans have since changed to accommodate market demand. Bridge Holding LLC is not seeking incentives under the Live Local Act but is instead assuming an obligation from GL Homes to provide workforce housing in the area. T&G Constructor is the general contractor; Martin Architectural Group designed Lake Worth Station.
The project is currently unfolding at 906 N G St., Lake Worth Beach, Florida, 33460, in Palm Beach County.
Subscribe to YIMBY’s daily e-mail
![]()
Follow YIMBYgram for real-time photo updates
Like YIMBY on Facebook
Follow YIMBY’s Twitter for the latest in YIMBYnews


Be the first to comment on "‘Lake Worth Station’ to Offer 91 Luxury Apartments at 906 N G St., Lake Worth Beach, Florida"