Archway Partners hopes to move forward with an affordable housing project in Tampa.
Wimbish Court, named for St. Petersburg’s first Black female City Council member (and a civil rights advocate), would feature 82 apartments. They would exclusively comprise one-bedroom floorplans, measuring 615 to 650 square feet.
In-unit amenities would include energy-efficient kitchen appliances, washers and dryers, and high-end finishings, such as granite countertops. Communal amenities at Wimbish Court would include co-working space, a tech lab, and support services.
Based on today’s current market trends, monthly rent would range from $586 to $1,564, with residency available to those earning up to 30, 60, and 80 percent of the area median income (AMI). Pinellas County’s median family income was $92,000 as of 2024.

The proposed build site is currently vacant. Image from Google Earth
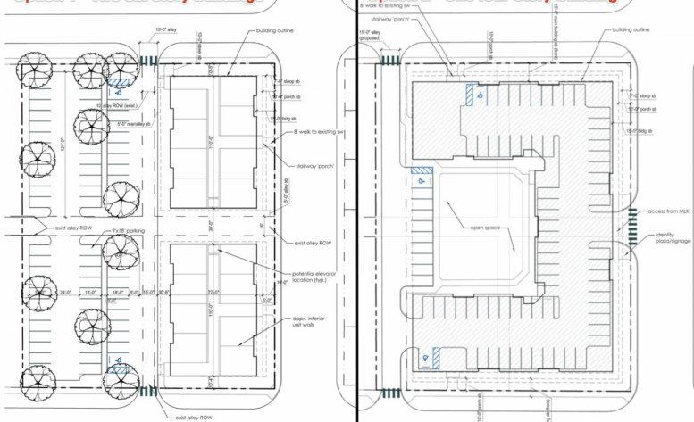
Currently, there are two plans on the table. The homes could be divided between two, six-story buildings or in a single, four-story building. St. Pete Rising notes that the design is contingent on whether the developer can secure an alley vacation. The project itself is also contingent on whether Archway Partners can successfully purchase the vacant 1.16-acre site via tax credits.
The Orlando-based firm is also developing Flats on 4th, an age-restricted, affordable housing development. Also located in St. Petersburg, the community is currently under construction and will feature 80 units upon completion.
Wimbish Court is set for 2025 Dr. M.L.K. Jr. Street South, St. Petersburg, Florida, 33705, in Pinellas County. Pending various approvals, construction could start in late 2026 or early the following year.
Subscribe to YIMBY’s daily e-mail
![]()
Follow YIMBYgram for real-time photo updates
Like YIMBY on Facebook
Follow YIMBY’s Twitter for the latest in YIMBYnews


Be the first to comment on "Archway Partners Seeks to Build 82-Unit ‘Wimbish Court’ at 2025 Dr. M.L.K. Jr. Street South, St. Petersburg, Florida"