Homestead-based R Homes Organization has proposed a low-rise residential development in Miami-Dade County. The proposed R. Homes Lux would measure four stories above grade and require 110,338 square feet of new construction.
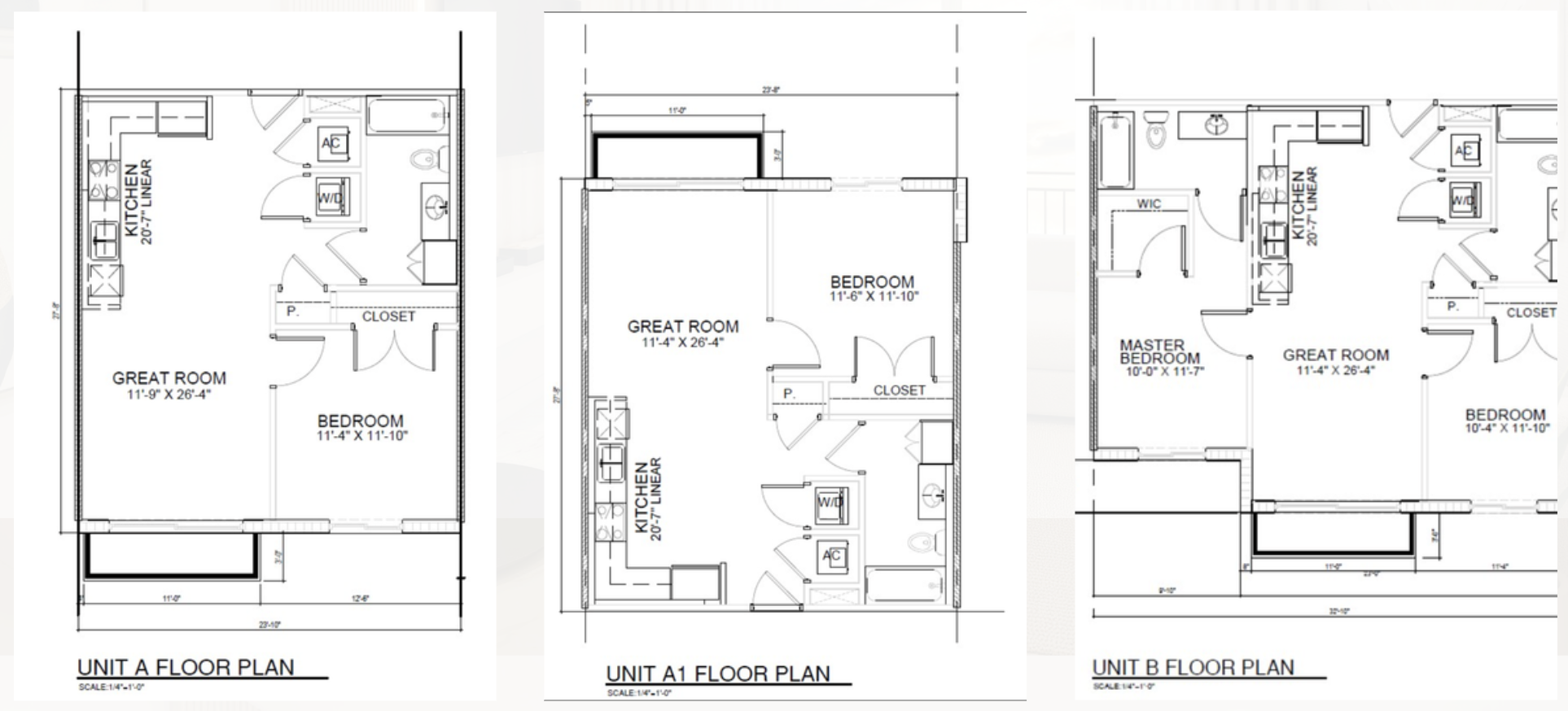
The community would feature 113 condos: 33 one-bedroom units, 62 two-bedroom units, and 18 three-bedroom units. Per the project’s brochure, residences would span 652 to 1,023 square feet, with six distinct floorplans to choose from.
Interior amenities include natural lighting features, private balconies, and open-concept floorplans. Residents at R. Homes Lux would have access to 94 parking spots and a fitness center. At the time of publication, the cost of ownership ranged from $299,000 to $439,990.

Renderings of one-bedroom and two-bedroom units. Image from the venture’s brochure
R. Homes Lux would occupy a 5.34-acre site that comprises five parcels; the developer purchased three of the parcels for $1.3 million in 2023, and it currently has the other two parcels under contract from its current owner.
CFM Architects is the architect. The Miami-based firm also designed the Residences at Beverly Park, a venture Florida YIMBY covered in July 2025. It’s set to measure 10 stories above grade and feature 115 apartments.
If brought to fruition, R. Homes LUX would occupy 28835, 28905, and 28935 S.W. 162nd Ave, Homestead, Florida, 33033, in Miami-Dade County.
Subscribe to YIMBY’s daily e-mail
![]()
Follow YIMBYgram for real-time photo updates
Like YIMBY on Facebook
Follow YIMBY’s Twitter for the latest in YIMBYnews


Be the first to comment on "Developer Proposes 113-Condo ‘R. Homes Lux’ at 28935 S.W. 162nd Ave, Homestead, Florida"