Miami-based Dragonfly Investments has submitted plans for a mixed-income housing project in Hallandale Beach.
The Gem is planned to measure 12 stories above grade and feature 170 residences. Floorplans will range from studios to two-bedroom units, measuring 474 to 1,116 square feet.
Sixty percent of the homes (102) would be designated either as affordable or workforce housing. Floridian Development reports that these homes would be reserved for households earning 30, 50, and 60 percent of the area median income (AMI); there would be at least five additional units for seniors earning up to 20 percent of the AMI.

At its highest point, the Gem would reach 137 feet. Image via Floridian Development
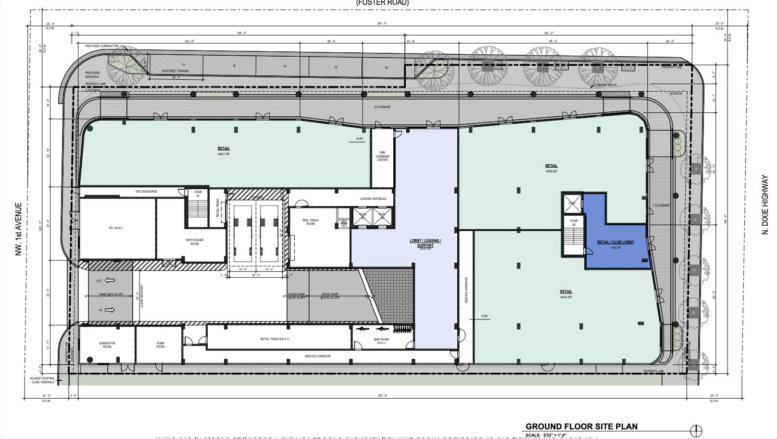
Every resident, regardless of their income bracket, would have access to the Gem’s on-site communal amenities, which include a swimming pool, rooftop terrace, and co-working space. In addition to the residential aspect, the Gem will feature 12,390 square feet of ground-floor retail and 256 parking spots.
Corwil Architects designed the Gem. At its highest point, the high-rise building will reach 137 feet tall and occupy a parcel measuring about one acre.
Developer Dragonfly Investments hopes to break ground on the Gem in early 2027. The mixed-use venture is set to occupy 411 N Dixie Hwy, Hallandale Beach, FL, 33009, in Broward County.
Subscribe to YIMBY’s daily e-mail
![]()
Follow YIMBYgram for real-time photo updates
Like YIMBY on Facebook
Follow YIMBY’s Twitter for the latest in YIMBYnews


Be the first to comment on "Mixed-Income Development ‘the Gem’ Proposed for 411 N Dixie Hwy, Hallandale Beach, FL"