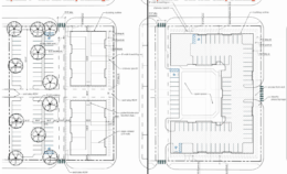
Boca Raton CRA Approves Two-Tower 12-Story Project at 170 N.E. Second St., Boca Raton, Florida
Florida YIMBY has an update regarding a hotel/retail venture in Boca Raton. Initially proposed in 2023, the venture was to comprise two 11-story buildings with 266 hotel rooms and 32,400 square feet of retail.





