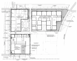
Construction Starts on ‘Charleston Ridge Apartments’ at 9949 Elyton Loop, New Port Richey, Florida
Construction has started on a mixed-use project with luxury housing in Pasco County. Charleston Ridge Apartments will comprise 230 units; they include one-bedroom to three-bedroom apartments, along with six townhome-style units.





