Miami’s Urban Development Review Board (UDRB) has plans to review the third and final phase of the Melo Group’s Aria Reserve project. Currently, phases one and two are under construction. The last phase, called Aria Reserve Skyclub, will comprise residential, retail, and office space.
More specifically, the Next Miami notes that the expansion would measure 49 stories, offering 430 homes. They would range from one-bedroom to three-bedroom layouts, with the average unit measuring about 1,403 square feet. As for the remaining aspects, plans call for 77,000 square feet of office space and 6,924 square feet of ground-floor retail.

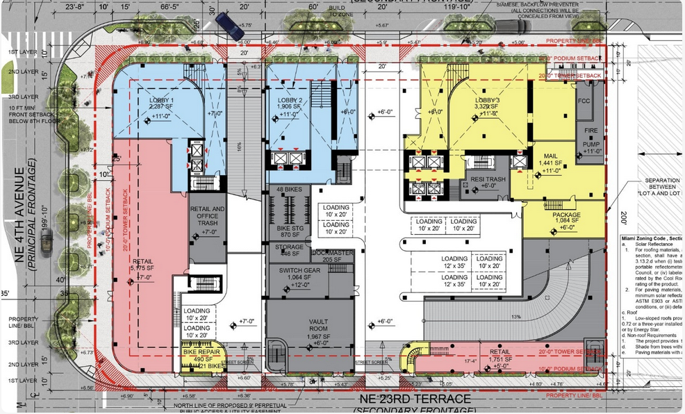
The siteplan. Image by Arquitectonica
As noted, the Melo Group is the developer. It’s continuing sitework on Aria Reserve North and Aria Reserve South, both of which are under construction and will measure 650 feet above grade. Upon completion, all three phases will bring a total of 1,172 units to Edgewater, Floridian Development notes. The publication also notes that developers are seeking approval for 520 parking spots enclosed in the tower’s podium, although the City’s code requires 775.
Arquitectonica designed the project. If the UDRB approves Aria Reserve Skyclub, it could start construction following the demolition of a low-rise structure on the 1.35-acre lot. It’s located at 500 NE 24th St., Miami, FL, 33137, in Miami-Dade County.
Subscribe to YIMBY’s daily e-mail
![]()
Follow YIMBYgram for real-time photo updates
Like YIMBY on Facebook
Follow YIMBY’s Twitter for the latest in YIMBYnews


Be the first to comment on "UDRB to Review Plans for Final Phase of Aria Reserve at 500 NE 24th St., Miami, FL"