420 Lincoln Road Development intends to move forward with a 15-story tower on Miami Beach. Measuring 164 feet at its highest point, the venture would feature 210 “reasonably priced” units, with floorplans spanning 550 to 1,112 square feet. The average unit would measure 739 square feet.
Per the project’s proposal, the homes are intended to meet the growing demand for housing in the region, aimed at “entry-level professionals, young families, or others who work in the City.” Amenities at the high-rise include a rooftop swimming pool, garden, and residents-only lounge.

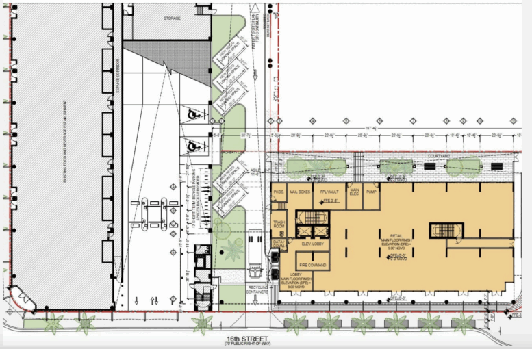
The venture would measure 15 stories. Image from WRE News
It would also host more than 20,000 square feet of retail; 6,900 square feet would be on the ground-floor, the remaining would be situated in the nearby parking garage (which would have 492 spots). As noted, 420 Lincoln Road Development is the developer. It’s led by Ambassador Paul Cejas.
If approved, the unnamed building would replace two buildings on the property. They date back to the 1930s and 1950s but are not deemed historically significant. Ten Arquitectos and Beilinson Gomez Architects designed the tower. Conceptual renderings show smooth stucco finishing, sliding glass doors, and a “modern skyline.”
For the project to proceed, it needs various approvals from Miami Beach’s Planning Board. It’s proposed for 1600 Washington Ave, Miami Beach, FL, 33139, in Miami-Dade County.
Subscribe to YIMBY’s daily e-mail
![]()
Follow YIMBYgram for real-time photo updates
Like YIMBY on Facebook
Follow YIMBY’s Twitter for the latest in YIMBYnews


Be the first to comment on "210 ‘Reasonably Priced’ Units Proposed for 1600 Washington Ave, Miami Beach, FL"