Florida YIMBY has an update regarding ArtsPark Lofts, a project we first covered in 2022.
Initial plans called for a 30-story building featuring 289 residences, about 1,900 square feet of retail, and a six-story parking garage with 359 spots. Now, following multiple revisions, the latest plans call for a 32-story building with 301 homes, about 1,200 square feet of ground-floor retail, and 367 parking spots.

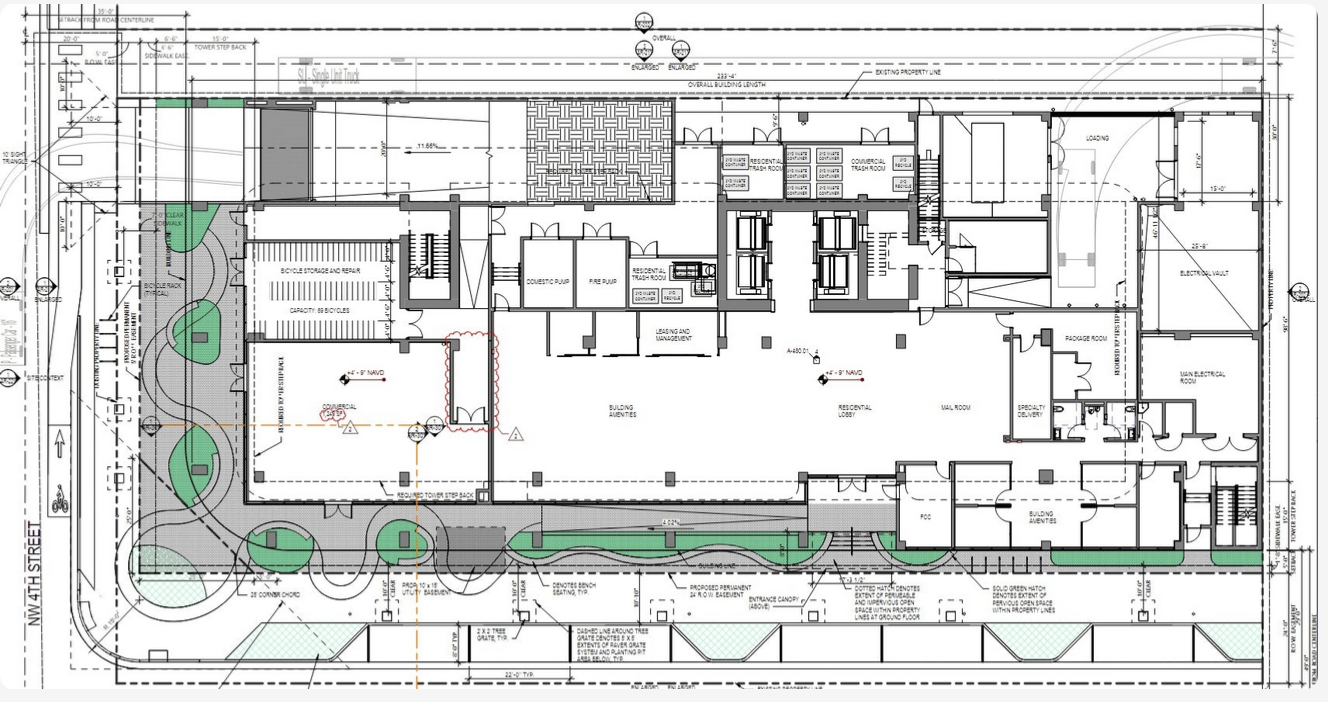
Updated site plans. Image by FSMY Architecture
Aside from these alterations, many aspects of ArtsPark Lofts have remained the same through its various iterations, such as the types of on-site communal amenities. Floridian Development shares that the most notable change includes the building’s overall height, which could be increased from 368 to 372 feet above grade. Fort Lauderdale’s City Commission intends to review updated plans for ArtPark Lofts on October 23rd.
FSMY Architecture designed the project. Florida YIMBY has reported on multiple projects in the Fort Lauderdale-based firm’s pipeline. One was the second phase of Las Olas, a 42-story tower with 563 rental apartments in Downtown Fort Lauderdale. Another project was Croissant Park North and Croissant Park South, a four-tower development featuring 932 residences.
ArtsPark Lofts has been proposed for 407 to 421 N Andrews Ave, Fort Lauderdale, Florida, 33301, in Broward County.
Subscribe to YIMBY’s daily e-mail
![]()
Follow YIMBYgram for real-time photo updates
Like YIMBY on Facebook
Follow YIMBY’s Twitter for the latest in YIMBYnews


Be the first to comment on "Developer Revises Plans for ‘ArtsPark Lofts’ at 421 N Andrews Ave, Fort Lauderdale, Florida"